


Vivienda Unifamiliar
Vivienda Unifamiliar Vivienda unifamiliar en El Casar Guadalajara 2023 Obra Nueva Residencial 502 m²...
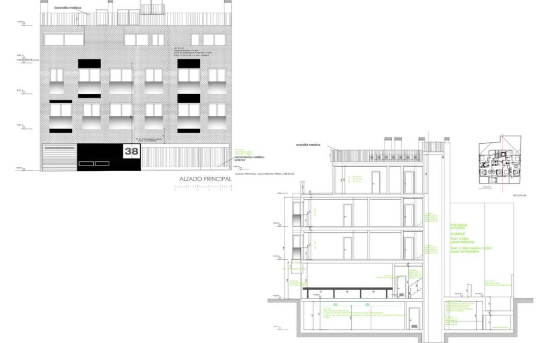
Germán Pérez Carrasco 38-40
Germán Pérez Carrasco 38-40 9 viviendas en Ciudad Lineal Madrid 2024 Obra nueva Residencial 1.067 m²...
Alcalá 446
Alcalá 446 15 viviendas y local en Ciudad Lineal Madrid 2024 Obra Nueva Residencial 1.088 m²...